3/256 St Heliers Bay Road, St Heliers
FeaturedOverview
Representing incredible value for money in the highly desirable Bays, this free-standing St Heliers home is the perfect first buy, or next buy, where you can enjoy low maintenance, stylish living. Extensively renovated within the last 10 years, and with the privilege of being close to the highly desirable beaches and villages of St Heliers and Kohimarama, this is affordable living with all the perks. Your soonest viewing is recommended – so are your early offers.
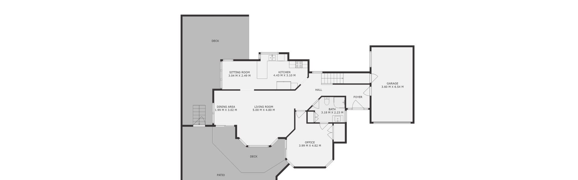
• Sun-filled, contemporary interiors offer plenty of scope and space for entertaining and relaxation. The easy flow between living, kitchen and dining is enhanced by the surrounding alfresco areas, and also a handy sitting room in a conservatory-like space, where a cuppa with friends will be always on the cards.
• Low maintenance, but still enjoying mature greenery, there is enough space for a small garden – just the right size for kids to kick a ball and for pets to play. The large deck areas will be a key hang-out space during the summer.
• The bedrooms are so well proportioned – the master even with it’s own private balcony which takes in the scenery thanks to it’s elevated position. Well appointed bathrooms, additional service areas, and an internal access garage round off a well planned footprint that is ideal for families and professionals alike.
• Leave the cars at home and enjoy the easy access to transport options on St Heliers Bay Road – whether you’re heading to the beach and village, or commuting to work or school, you have the option of direct routes. Parks, amenities and the popular coastline the Bays is renowned for are all at hand.
Well within your reach, ready to go, and representing a rare opportunity, this is a home you can purchase with confidence in a location that will always hold value. Act without delay.
Details
-
Property ID:RMU41323
-
Floor area:184 m2
-
Rooms:3
-
Bedrooms:3
-
Baths:3
-
Garages:1
-
Price ($):Price by negotiation
-
Status:
















